Четверг, 26 января 2017 04:06

Производственный комплекс в пос. Романовка

Производственный комплекс в п. Романовка (Ленинградская обл., Всеволожский район) для нужд компании, занимающейся производством объемных георешеток, геомембран, а также геотекстиля. В состав комплекса входило Административно-бытовое здание и два склада.

Административно-бытовое здание

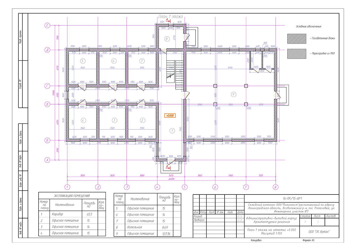
Здание имеет прямоугольную форму с размерами в плане 26,37 м. х 17,08 м. Данное здание предназначено для размещения охраны и нескольких административных работников предприятия. Здание запроектировано двухэтажным.

Архитектурное решение фасадов выполнены по заданию заказчика из кирпича. Внутренняя отделка помещений – во влажных и мокрых помещениях предусмотрена облицовка стен глазурированной плиткой, полы керамическая плитка. Помещения с сухими процессами: стены - штукатурка с окраской водоэмульсионной краской, полы – керамическая плитка. Потолки подвесные типа «Армстронг».

Фундамент здания – железобетонная плита, несущие и ограждающие конструкции выполнены из газобетона, перекрытия выполнены из железобетона по профлисту. Кровля двухскатная из металлочерепицы по деревянной обрешетке, стропильная система деревянная. 

В здании предусматривается естественная вентиляция с возможностью проветривания помещений. 

Здание оборудовано автоматической пожарной сигнализацией. Все помещения оснащены первичными средствами пожаротушения.

В соответствии с назначением и организацией производства в здании размещены следующие помещения:

на 1-ом этаже

  • офисные помещения в количестве 7 шт.;
  • коридор
  • теплоцентр/водомерный узел/котельная;
  • санузлы в количестве 2 шт.

на 2-ом этаже

  • офисные помещения в количестве 2 шт.;

Здания склада (2 объекта)

Здание имеет прямоугольную форму с размерами в плане 54 м. х 18 м. Данное здание предназначено для складирования материалов и готовой продукции. Здание запроектировано одноэтажным.

Архитектурное решение фасадов отражает складское назначение здания. В наружной отделке применены сэндвич-панели. Кровля двухскатная и также выполнена из сэндвич-панелей. Полы складского здания бетонные с железнением.

Фундамент здания – железобетонная плита, конструктивная схема – связевой каркас с горизонтальными дисками жесткости и связями. 

Здание оборудовано автоматической пожарной сигнализацией. Все помещения оснащены первичными средствами пожаротушения.

В соответствии с назначением и организацией производства в здании размещены следующие  помещения:

на 1-ом этаже

  • помещение склада;

В рамках данного договора Нашей компанией были выполнены следующие работы:

  1. Разработка проекта Стадии «Проектная документация» и стадии «Рабочая документация»;
  2. Получение разрешения на строительство.

В данный момент проект полностью реализован.