Капитальный ремонт ЛО - Разбегаево
Капитальный ремонт ЛО - Разбегаево
Капитальный ремонт ЛО - Разбегаево
Общие данные (раздел АС)
Общие данные (раздел АС)
План фундамента
План фундамента
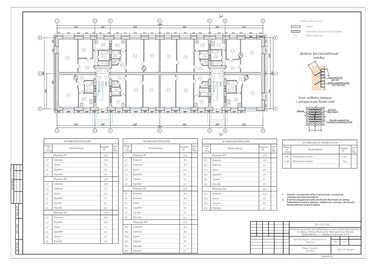
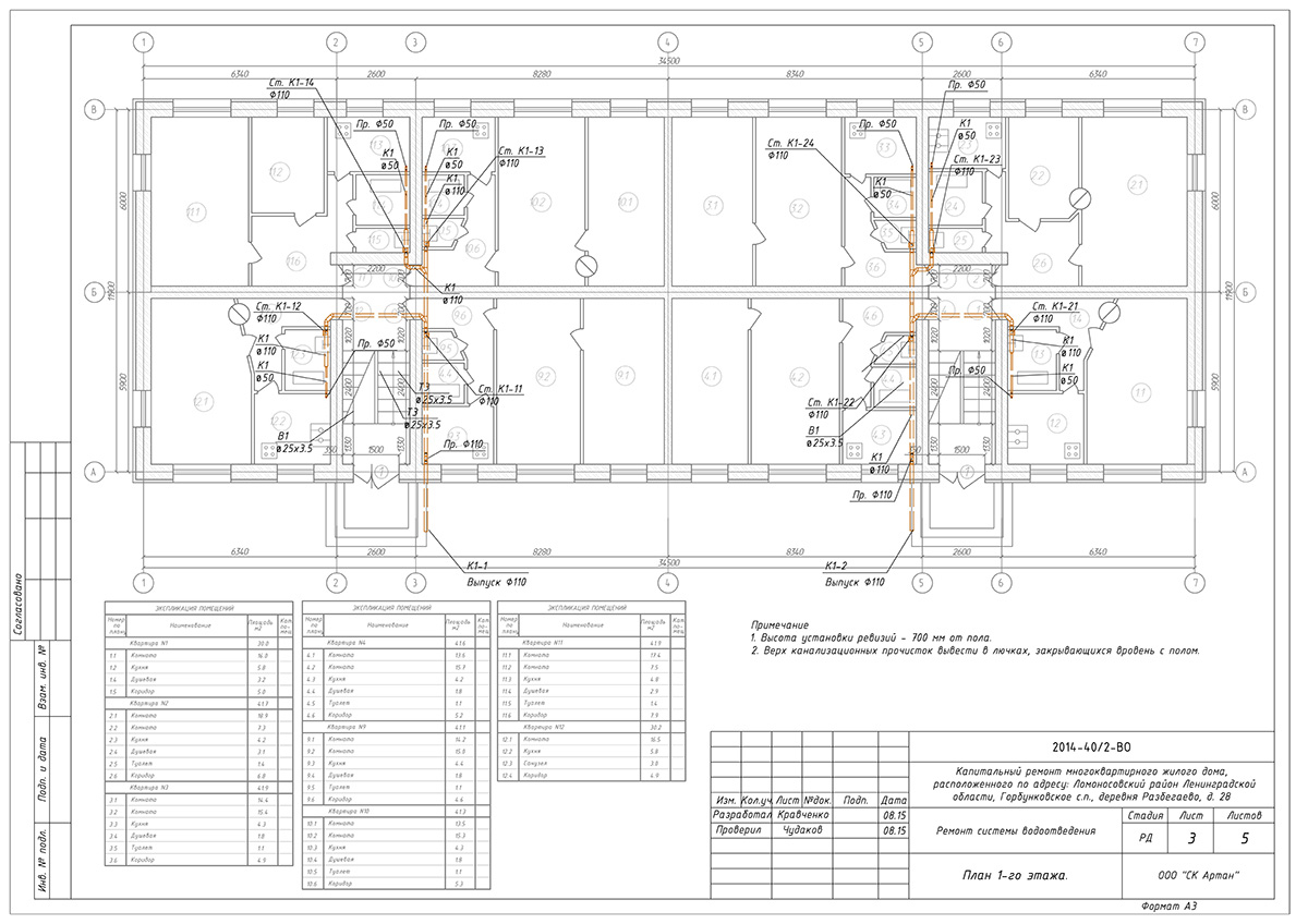
План первого этажа
План первого этажа
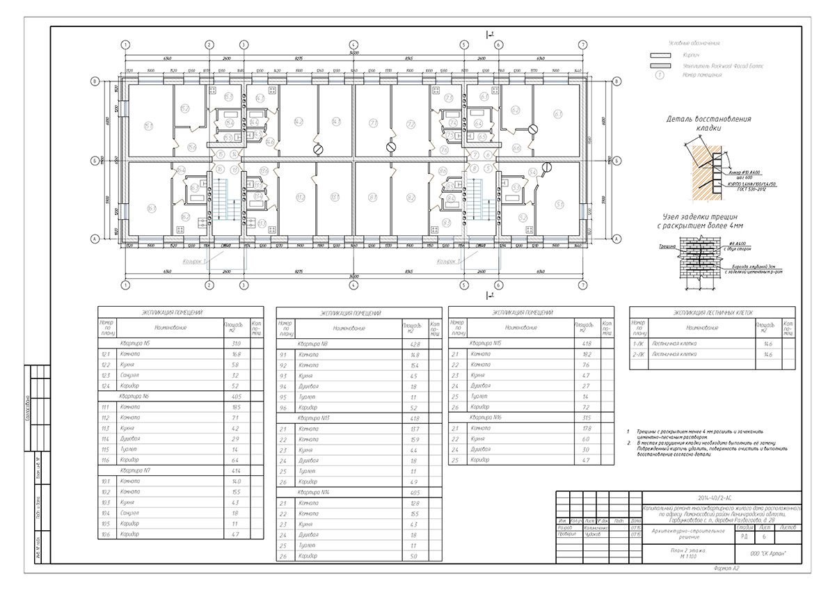
План второго этажа
План второго этажа
Разрез
Разрез
План кровли
План кровли
Схема стропил
Схема стропил
3-d вид стропильной системы
3-d вид стропильной системы
Цветовое решение фасадов (вид 1)
Цветовое решение фасадов (вид 1)
Цветовое решение фасадов (вид 2)
Цветовое решение фасадов (вид 2)
Общие данные (раздел ВО)
Общие данные (раздел ВО)
План первого этажа ВО
План первого этажа ВО
План второго этажа ВО
План второго этажа ВО
Схема системы канализации
Схема системы канализации
Общие данные (раздел ГВС)
Общие данные (раздел ГВС)
План первого этажа ГВС
План первого этажа ГВС
План второго этажа ГВС
План второго этажа ГВС
Схема системы ГВС
Схема системы ГВС
Общие данные (раздел ГСВ)
Общие данные (раздел ГСВ)
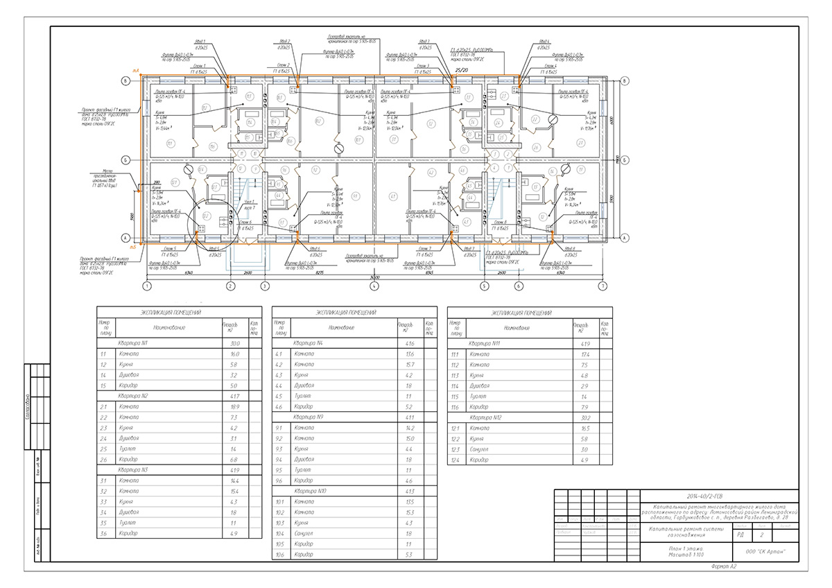
План первого этажа ГСВ
План первого этажа ГСВ
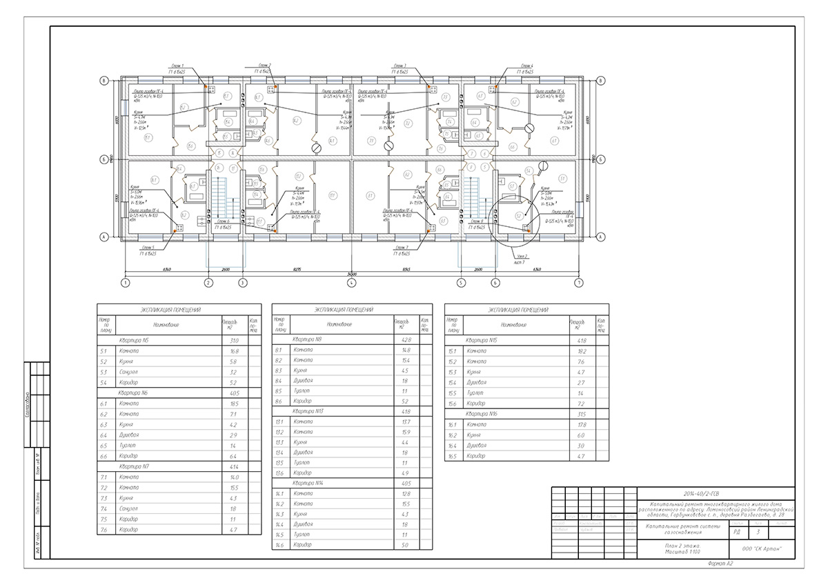
План второго этажа ГСВ
План второго этажа ГСВ
Фасады (вид 1)
Фасады (вид 1)
Фасады (вид 2)
Фасады (вид 2)
Общие данные (раздел ОВ)
Общие данные (раздел ОВ)
План первого этажа ОВ
План первого этажа ОВ
План второго этажа ОВ
План второго этажа ОВ
Схема системы ОВ
Схема системы ОВ
Общие данные (раздел ХВС)
Общие данные (раздел ХВС)
План первого этажа ХВС
План первого этажа ХВС
План второго этажа ХВС
План второго этажа ХВС
Схема системы ХВС
Схема системы ХВС
Общие данные (раздел ЭС)
Общие данные (раздел ЭС)
Однолинейная расчетная схема щита ВРУ
Однолинейная расчетная схема щита ВРУ
План питающей сети первого этажа
План питающей сети первого этажа
План питающей сети второго этажа
План питающей сети второго этажа
План сети освещения подъездов первого этажа
План сети освещения подъездов первого этажа
План питания квартирных щитов первого этажа
План питания квартирных щитов первого этажа
Молниезащита
Молниезащита
Заземление
Заземление